Angebote

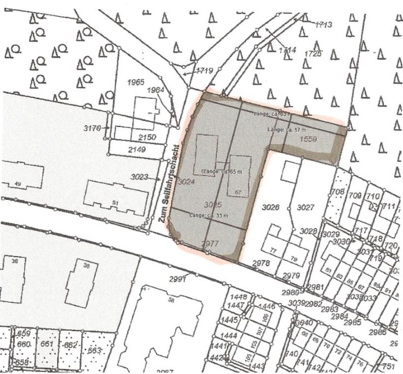
Attraktives Grundstück für Geschosswohnungsbau in Marl

2,800 m² -

QR Code
Objektbeschreibung
Ruhige Grünlage in Marl -Dümmer Baugrundstück für zwei MFH in 4-geschossiger Bauweise nach BPlan Nr. 111 oder evtl. acht DHH bzw. RH, nach Rücksprache mit der Stadtplanung. Diese hat hierfür eine Änderung des BPlanes signalisiert
Einzelheiten
Immobilie : Grundstück
ID : 1010
Preis : €426.700
Ausblick : Garten
Fläche : 2,800 m²
Grundstück
  • ID : 1010
  • Fläche : 2,800 m²
  • Visits : 1997 in 2242 days
€426.700